Results FS20

Damien Greder
LIVING BEHIND A SHIELD

The former CIBA campus is located downstream from Basel, close to the German and French border. The position relates to the water, as a resource, a mean of transportation and a practical way to throw out wastes. The industry, originally dedicated to silk processing, diversified over time to chemical investigations such as synthetic materials, agrochemicals, vitamins and pharmaceutical products. Designed for trucks, cars and goods rather than for humans, the place assumes strict proximity between the buildings. This closeness is questioning the intimacy experienced by the new dwellings.

Plastic, an oil by-product, can serve as mediator in the re-use of one of the buildings. Instead of being destroyed, the building’s structure can be preserved and protected by another leftover - PET - a readymade waste. In the new neighbourhood, this once dreamed material will remind CIBA’s industrial time. To take advantage of the material’s properties and compensate for its weaknesses, PET will be combined with aerogel. Together they perform qualities of lightweight, protection and translucency. At the building scale, a membrane encloses the inhabitants up to reach deep isolation. An introverted spatiality, flooded by light, that assumes and explores the growing individuality our society is facing.

The following chairs have also contributed to the development of the project: Bautechnologie und Konstruktion, Dozentur Mettler / Studer Kunst und Architekturgesichte, Prof. Philip Ursprung

A production’s space where the previous owner, considering the site as a leftover, sold it to pension funds, letting this last production site to be integrated to the city. Designed for trucks, cars and goods rather than for humans, the place assumes strict proximity between the buildings. Once part of the public realm, pedestrians might benefit from it, as the flâneur would face a real urbanity. On the other hand, this closeness is questioning the intimacy experienced by the new dwellings.
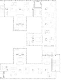
Built-in 1937, the K-26 building represents the power of CIBA under a great lightness. Symmetrical façades are composed by corner, banded or wide square windows, who seem to cover the widest possible surface area. The transformation of the storage building into a housing program focuses on the replacement of the facade and, in response to the large stories’ dimensions, a central excavation will distribute light to all spaces. The typologies are adapting to the existing vertical circulation and to the mushroom structure. The great privacy brought by the new envelop permits to use the ground level for homes as well. Apartments will take advantage of the high ceiling and generous rooms offer by the columns’ grid.
Because of the absence of crude oil in Switzerland, recycled PET can be considered as a local polymer, processed from post-consumer wastes. Each year in the country 31 000 tonnes of used PET are revalorized.
The process consists of collecting, sorting, shredding, and melting, to form new granulates. Between each step, the material is cleaned and filtered, to reach a grade of purity of 99,98%.
As a thermoplastic, Polyethylene terephthalate, if used in a pure form, can be recycled and transformed into another product, again and again.
Compared to virgin PET, each kilo of recycled PET produced is saving half of the energy, between 1 and 3 litres of crude oil, and 3kg of CO2. During the PET recycling process, additives can be added to provide additional protection to UV, flame retardant and strength enhancement.